MI isoleerimata ja isoleeritud akumulatsioonipaagid

OVAALSED JA SILINDRILISED

 

Lisainfot leiad: MI akumulatsioonipaagid

alt

 

Võimalus tellida lisavarustusena sisseehitatud soojusvahetid tarbeveele või päikeseküttele.

TS – sooja tarbeveespiraal (soojusvaheti) 10 m (1,36 m², 22 kW, gofreeritud toru roostevabast terasest EN 1.4404).
PS – päikeseküttespiraal (soojusvaheti) 20 m (2,7 m², 44 kW, gofreeritud toru roostevabast terasest EN 1.4404).
Võimalik tellida pikem spiraal, iga lisa 5 m.

Lisainfot leiad: MI akumulatsioonipaagid

alt

Spiraalile on võimalik tellida ka äärik,
Ühele äärikule saab paigaldada kuni 10 m spiraali.

alt

Isolatsiooni paksus on:
– silindrilistel paakidel 50 mm (100 – 400 l paagid) ja 100 mm (500 – 3000 l paagid);
– ovaalsetel paakidel 100 mm.
Materjal: tehniline vatiin (pehme polümeerikiud), kaetud 1 mm paksuse plastikkestaga.

Paakide kõrgust ja muhvide asukohti saab soovi korral muuta, samuti paigaldada lisamuhve.

Paakidele on võimalik tellida kihieraldusplaat.

Paagid on krunditud, kruntvärvile tehtuid reklamatsioone (tarneahelas tekkinud kriimud, metalli aluspind näha, vms.) ei võeta käsitusele, kuna paakidel puudub viimistlusvärv.

SILINDRILISED MUDELID

alt

 

alt

alt

Lisainfot leiad: MI akumulatsioonipaagid

.............................................................................................................................................................................................................................

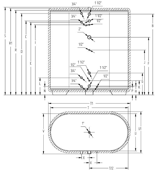
OVAALSED MUDELID

alt

 

alt

alt

Lisainfot leiad: MI akumulatsioonipaagid

alt

 

alt

alt

 

alt

alt

alt

Lisainfot leiad: MI akumulatsioonipaagid 

 

MI isoleerimata ja isoleeritud akumulatsioonipaagid, OVAALSED JA SILINDRILISED

No image set
744,00 €
Puhverpaak 60 l
434,00 €